針對漣城交付的各個戶型我們已舉行過研討會,戶型的優缺點以及設計方案也已出爐.歡迎您和我們取得聯系,讓設計師結合您家要求做定制設計!
■以下設計方案僅提供一個設計思路,結合每位業主的現場實際情況及要求,最后的方案也會不同
簡約歐式設計說明 本案的設計風格為簡約歐式,營造典雅、自然、高貴的氣質、浪漫的情調是本案的主題。 簡約、質樸的設計風格是眾多人群所喜愛的,生活在繁雜多變的世界里已是煩擾不休,而簡單、自然的生活空間卻能讓人身心舒暢,感到寧靜和安逸;藉著室內空間的解構和重組,便可以滿足我們對悠然自得的生活的向往和追求,讓我們在紛擾的現實生活中找到平衡,締造出一個令人心弛神往的寫意空間。
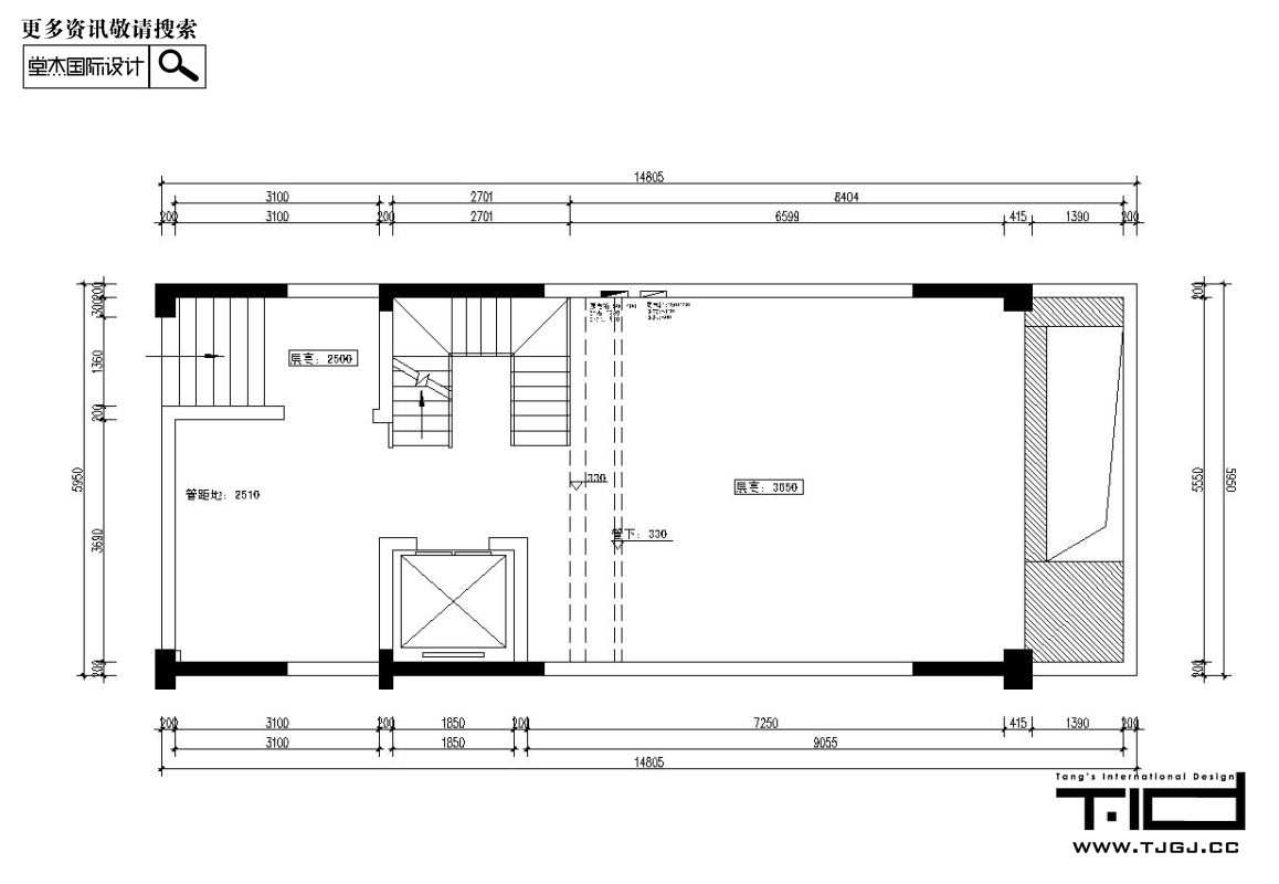
負一層原始結構圖↓

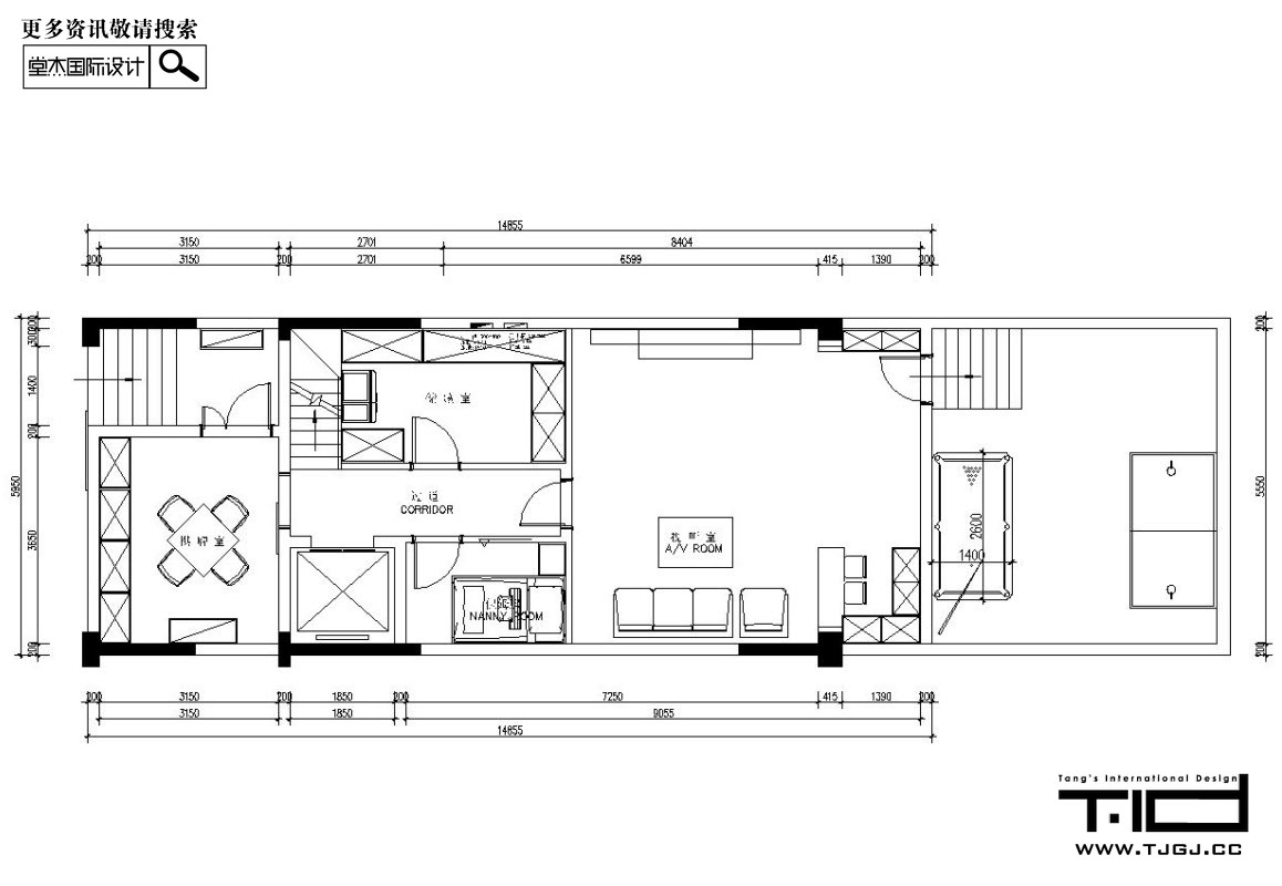
負一層平面布置圖↓

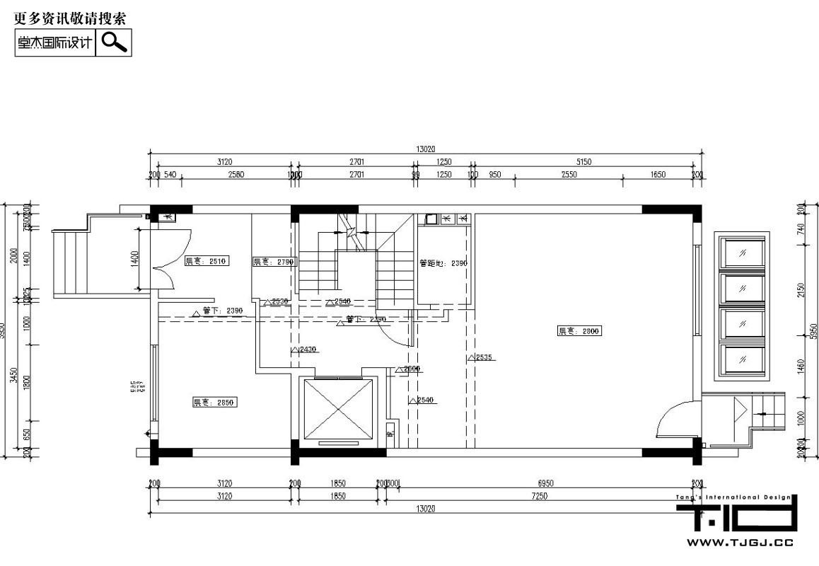
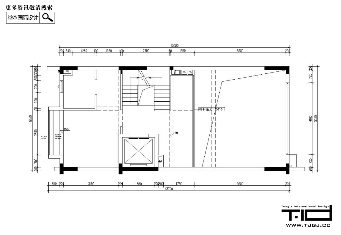
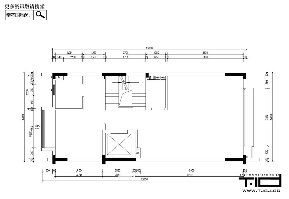
一層原始結構圖↓

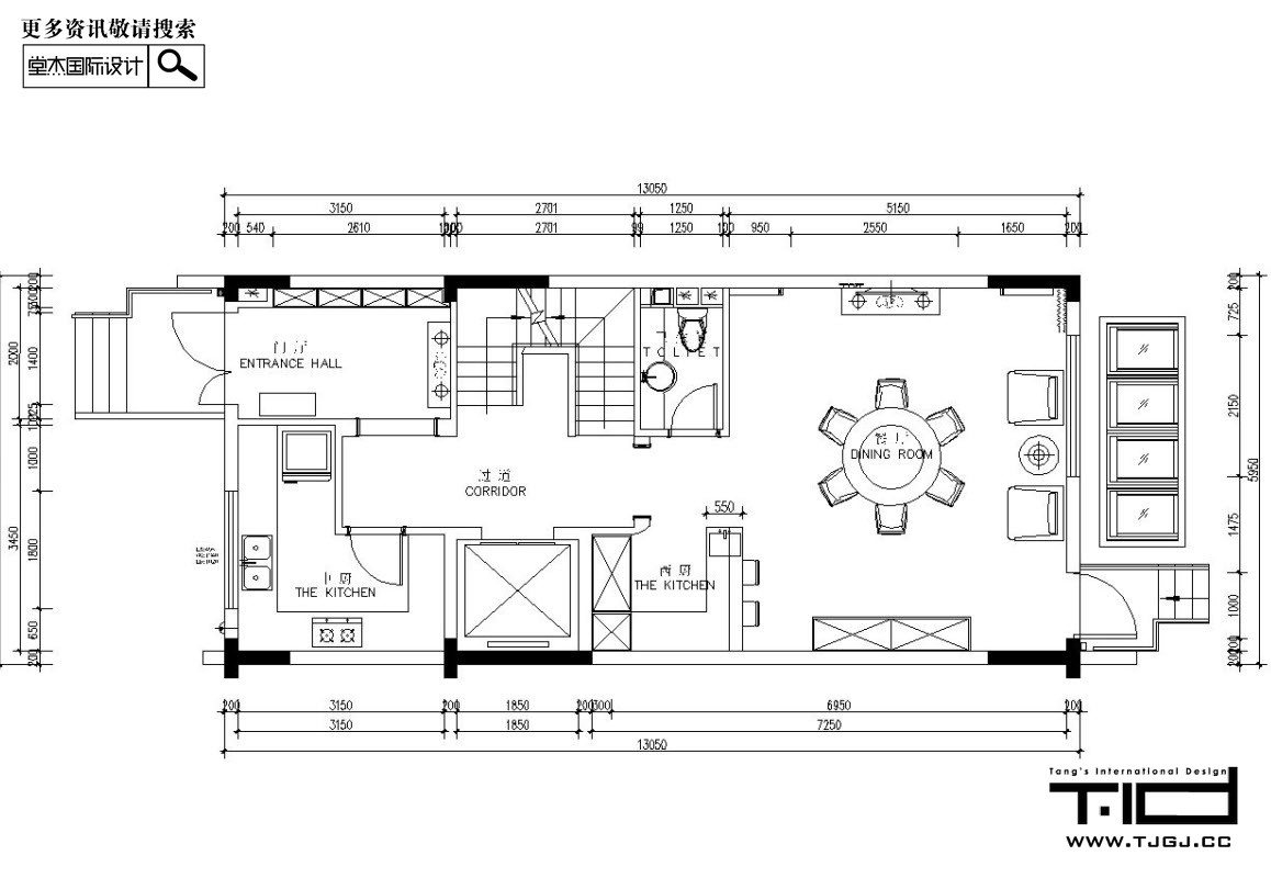
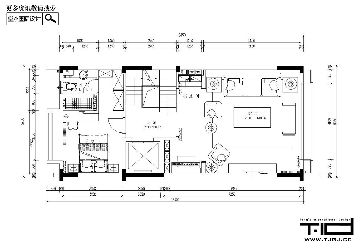
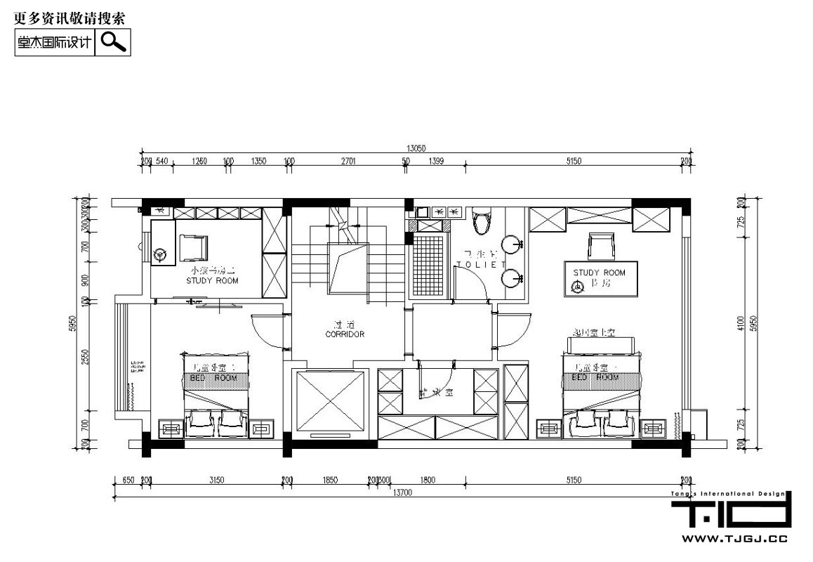
一層平面布置圖↓

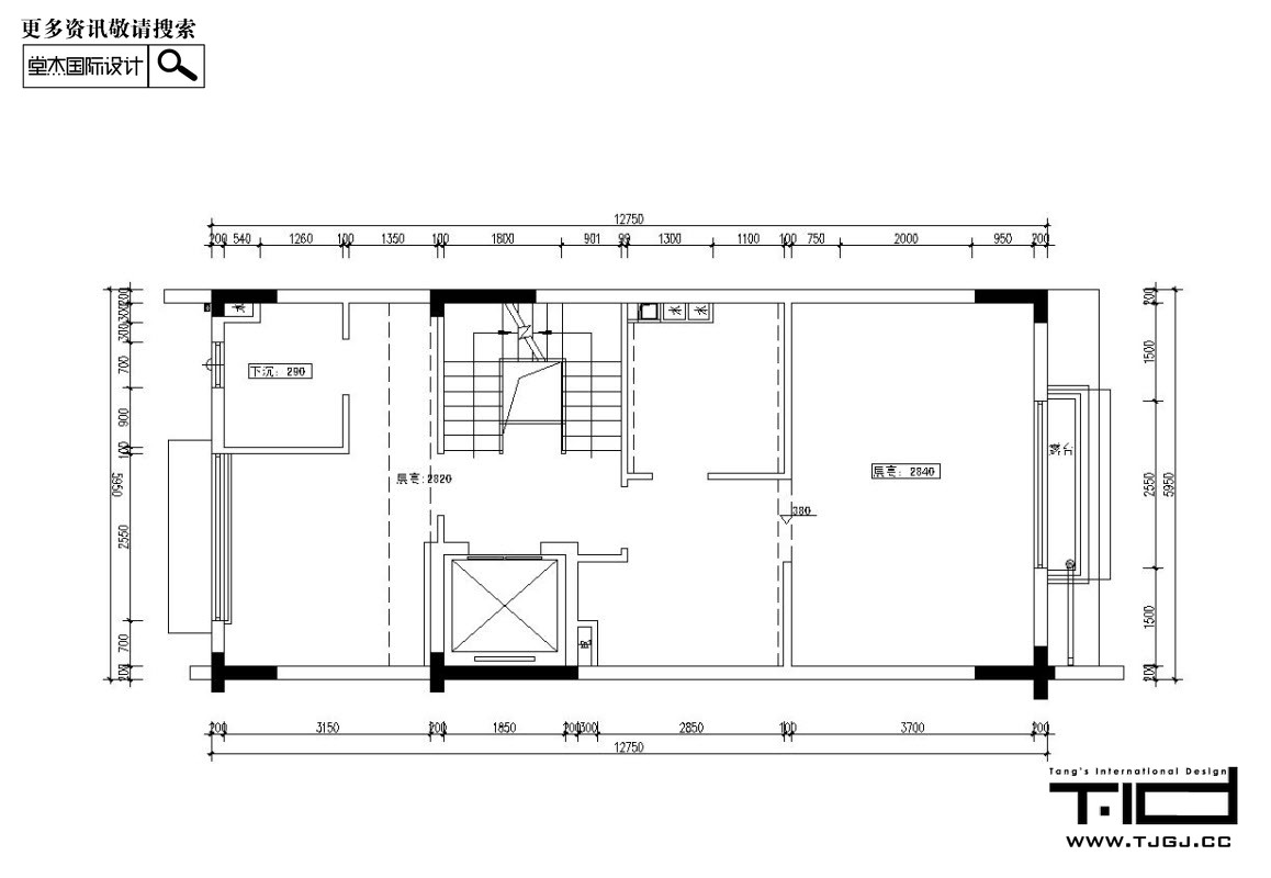
二層原始結構圖↓
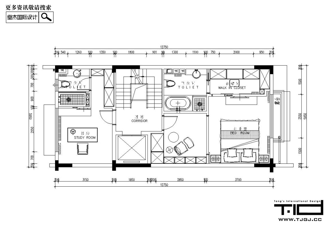
二層平面布置圖↓

三層原始結構圖↓

三層平面布置圖↓
四層原始結構圖↓
四層平面布置圖↓

想了解更多漣城戶型資料么?
堂杰國際設計準備了漣城各戶型全套設計方案、工程量報價、參考效果圖、主材搭配方案.歡迎您和網絡客服取得聯系,預約來店面詳細溝通.堂杰國際設計,設計專家!
想了解更多漣城戶型資料么?
錦華裝飾準備了漣城各戶型全套設計方案、工程量報價、參考效果圖、主材搭配方案.歡迎您和網絡客服取得聯系,預約來店面詳細溝通.錦華裝飾,設計專家!.
江蘇家裝示范品牌
代表地區優秀設計聲音
集25年工程管理經驗之大成
省時、省力更省心
| 走進錦華 | 設計團隊 | 作品列表 | 戶型解析 | 裝修百科 |
關注錦華公眾號
|
瀏覽手機官網 |
全國熱線 025 86550815 |
||||||||||
| 新聞列表 | 錦華文化 | 堂杰國際設計 | 1865旗艦店 | 極簡 | 中古 | 秦淮金茂府 | 常見問題 | ||||||||||
| 全國分公司 | 錦華招聘 | 河西旗艦店 | 鼓北旗艦店 | 法式 | |||||||||||||
| 錦華簡介 | 聯系我們 | 城東旗艦店 | 江寧旗艦店 | 歐式古典 | 北歐 | 中交錦方 | |||||||||||
| 資質榮譽 | 法律聲明 | 江北旗艦店 | 江浦店 | 美式田園 | 新古典 | 溧水玖宸府 | |||||||||||