設計師:余禮華(江寧旗艦店 主任設計師)
案例說明
極簡是對設計的自信。本套風格采用現代極簡風,在格局上稍做調整,讓整體的功能更具實用性??珘?,搭配大尺寸裝飾畫,讓整體既有家的溫馨,又有藝術感。地面上選擇干凈耐看的灰色地磚,搭配整體的平頂加筒燈照明,讓現代感躍然紙上。在后期的軟裝搭配中,我們也盡量避免繁雜的裝飾,主照明靠筒燈及反光燈帶。讓整體的光感更柔和,自然。優缺點分析
優點:
得房率較高,采光較好
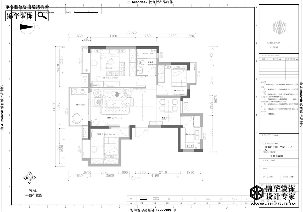
格局分布合理,客餐廳及主臥空間比較規整
缺點:
兩個小房間空間過于緊湊
廚房,書房空間尺寸緊張,格局分布不合理
原始結構圖↓
平面布置圖↓
鳥瞰圖↓
俯視圖↓
客戶效果圖↓
客戶效果圖↓
客戶效果圖↓
想了解更多武夷名仕園戶型資料么?
錦華裝飾準備了武夷名仕園各戶型全套設計方案、工程量報價、參考效果圖、主材搭配方案.歡迎您和網絡客服取得聯系,預約來店面詳細溝通.錦華裝飾,設計專家!.
江蘇家裝示范品牌
代表地區優秀設計聲音
集25年工程管理經驗之大成
省時、省力更省心
| 走進錦華 | 設計團隊 | 作品列表 | 戶型解析 | 裝修百科 |
關注錦華公眾號
|
瀏覽手機官網 |
全國熱線 025 86550815 |
||||||||||
| 新聞列表 | 錦華文化 | 堂杰國際設計 | 1865旗艦店 | 極簡 | 中古 | 秦淮金茂府 | 常見問題 | ||||||||||
| 全國分公司 | 錦華招聘 | 河西旗艦店 | 鼓北旗艦店 | 法式 | |||||||||||||
| 錦華簡介 | 聯系我們 | 城東旗艦店 | 江寧旗艦店 | 歐式古典 | 北歐 | 中交錦方 | |||||||||||
| 資質榮譽 | 法律聲明 | 江北旗艦店 | 江浦店 | 美式田園 | 新古典 | 溧水玖宸府 | |||||||||||